
Печь ротационная Kocateq OMJ4615 Gas
Gas rotary oven Kocateq OMJ4615 is intended for baking of bakery and confectionary products at public catering enterprises. The model is equipped with touch control panel with electronic controller Motorola with the block of programming on 16 programmes.
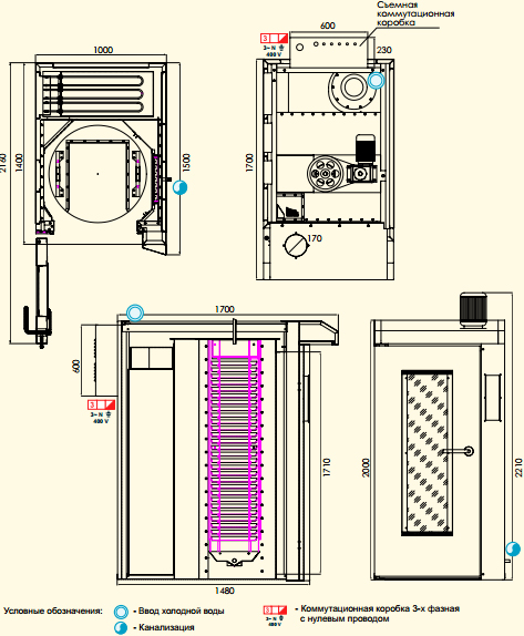
Oven is dismantled into 2 parts with a minimum width of 680 mm, which allows you to place it in a doorway width of 700 mm Must be connected to the water supply, Sewerage, electricity and ventilation.
In the scope of delivery includes the burner is Riello GS10, truck-hairpin in flat packing size HH mm and 18 aluminum trays aluminum h mm. Gas burner OMJ Burner must be ordered separately.
Modes of preparation:
- Convection for even baking
- Steaming for gloss on the product
- With the cycle of steam generation at the initial stage
- Without steam
Features:
- Circulating diametrically fan
- Built-in hood over the door
- The housing, the heating elements of the heater and working parts are made of stainless steel AISI 430
- Large viewing window
- The door on the left loop
- Backlight
Additional features:
- The distance between tiers: 90 mm
The appearance of the equipment may not coincide with the image in the picture. Manufacturers may change the packaging and the product characteristics without prior notice.
03:58:39 - 31.01.2026
03:58:40 - 31.01.2026
03:58:40 - 31.01.2026
15:25:11 - 31.01.2026








