
Картофелечистка ТОРГМАШ, Беларусь МОК-150М
Potato peelers the food and trade MOK-150M is designed for peeling potatoes and roots (beetroot, carrots) from the peel to the catering.
The machines are available in the performance BONDS according to GOST 15150-69 for operation at temperature from plus 1 to plus 40 °C.
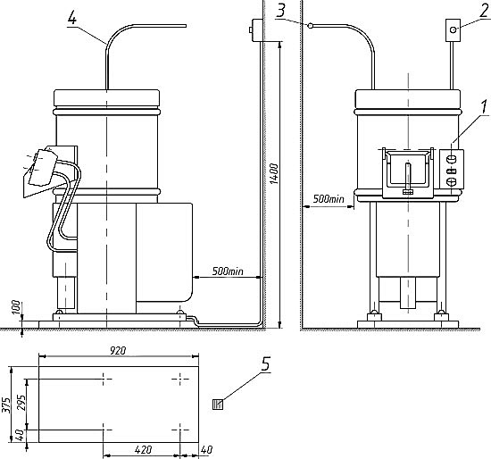
The machine consists of a working chamber, a funnel to load the product, control panel, frame and drive.
Kartoffelmelcentralen machines of periodic action MOK-300M are produced in accordance with the requirements of STB ISO 9001-2009, are Belarusian and Russian certificates of conformity and DECLARATION WAPOST PRODUCTS IMOGAM TECHNICAL REGLAMENTS, the certificate of the state hygienic registration certificate of conformity to EU directives - CE certificate safety mark B and conformity Declaration.
The cleaning process is a mechanical impact on the product of the working bodies (of the bowl the abrasive and the inner chamber with holes) and water. The pulp is removed through the holes on the bottom of the machine via the drain hose into the sewer directly or through a filter sump.
Turn the machine off by pressing the button "start". Then turn on the water. Through the lid in the funnel is loaded pre-washed product. The degree of cleaning is determined visually. After cleaning it should, without turning off the machine, disconnect the water, open the door, and the product, under the influence of centrifugal force will eject the tray in a container. The purified product is subjected to cleaning (removal of "eyes" and the rest of the skin) manually.
Place of installation of the machine must guarantee security and provide convenience for its operation and maintenance, and must comply with sanitary standards, fire safety requirements and safety, as well as wiring diagrams.
22:17:59 - 05.12.2025
01:40:38 - 03.12.2025
22:17:59 - 05.12.2025
22:17:59 - 05.12.2025








